• Hallo TT-Modellbahner, schön, dass du zu uns gefunden hast.
    Um alle Funktionen nutzen zu können, empfehlen wir dir, dich anzumelden. Denn vieles, was das Board zu bieten hat, ist ausschließlich angemeldeten Nutzern vorbehalten. Du benötigst nur eine gültige E-Mail-Adresse und schon kannst du dich registrieren.
    Deine Mailadresse wird für nichts Anderes verwendet als zur Kommunikation zwischen uns.
    Die Crew des TT-Boardes

Module von Mathias

Das sieht schon ziemlich gut aus,
derartige Eigentümer-Standardbauten gab es ja auch in Deutschland bei etlichen Bahngesellschaften.

Auch die Aufteilung in verschiedene Räume gefällt mir. Was mir hier (beim EG) fehlt, ist ein Treppenhaus und evtl. ein Flur...
 
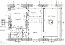
Wenn man sich mit der Geschichte der Gebäude beschäftigt, kommen interessante Details dabei heraus. Am 26. April 1880 veröffentlichte das französische Ministerium für öffentliche Arbeiten die Kriterien für Gebäudetypen und deren Einteilung in Klassen. Die PLM hielt sich daran und entwickelte die Klassen 1 - 4 für ihre Empfangsgebäude. Sie richteten sich nach der vorhandenen Bevölkerung im Umkreis der Stationen.

Saint-Désert ist also ein Gebäude der 3. Klasse mit 3 Türen im Erdgeschoss. Das bedeutet 6000 Einwohner im Umkreis von 10 km um den Bahnhof herum und 30 Reisende am Tag. Was für ein Service ... für 30 Reisende pro Tag. Für 80 Reisende pro Tag war dann das EG schon eine Nummer größer.

Erdgeschoss.jpg

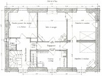
Die Größe der Wohnung des Stationsleiters betrug 80 m². Dazu kam noch ein Übernachtungszimmer für Personal. Im Obergeschoss die Dienstwohnung des Chef de Gare.

Obergeschoss 1.jpg

Wer es also ganz genau haben möchte, mit der Inneneinrichtung kann sie ja auch selber nachbauen. Zu sehen ist sie durch die kleinen Fenster nicht.

@Stardampf
Die Treppe nach oben ist eine Wendeltreppe.

Mathias
 
Zuletzt bearbeitet:
A&P bietet noch für TT gelaserte Bahnsteigkanten an. Ich habe mal beide Varianten genommen. Sie reichen für 150 cm Bahnsteiglänge, 2 Kantenenden und einen Übergang.

Bahnsteigkante.jpg

Farblich angepasst vervollständigen sie den typischen PLM Bahnhof.

Rollschranke.jpg

Und nicht zu vergessen eine typisch französische Rollschranke mit 2 Türen für den Personenverkehr, hier in der 4m-Version. Man findet sie noch heute im Netz der SNCF, wenn auch nicht mehr als Schranke am Bahnübergang.

El 01.jpg

Bei meiner Frankreichreise 2024 am Bahnhof Elne entdeckt. Hier die 6 m Version.

El 02.jpg

Hier noch ein Beispiel für einen ehemals mit einer Rollschranke gesicherten Übergang. Im Hintergrund das Postenhaus, heute privatisiert. Der Übergang ist nur noch für Fußgänger und Radfahrer durch die kleine Tür zugelassen. Der Rest der Schranke ist zurückgebaut, der ehemalige Übergang durch Schienenstücke abgesichert.

BÜ 1.jpg

Mathias
 
Schwierig ist auch die Informationsbeschaffung über Bahnsteigzubehör wie Bänke, Papierkörbe, Lampen, Zäune. Da helfen oft nur alte Fotos oder Postkarten.

Welche Schriftart hatten die Bahnhofsschilder französische Bahnhöfe?
Ich habe mich mal auf die Suche nach einer passenden Schrift gemacht. Zum Glück gibt es ja Hilfe im Internet.
Man kann ja dank Google Maps heute gefühlt ganz Frankreich per Street View besuchen, ohne je da gewesen zu sein. Ein User namens Harry Trib hat den gesamten heutigen Radweg im Juni 2025 mit seinen Fahrrad bereist und tolle Aufnahmen für Google Street View geliefert. Man kann sich dort auch den aktuellen Zustand von Saint-Désert anschauen.

Also habe ich mir mal den ehemaligen Warteraum von Massilly (ein paar Kilometer weiter) mit seinem Bahnhofsschild als Referenz genommen und nach einer passenden Schrifttype gesucht.

Massilly.png

Ich finde die untere Schriftart kommt dem Original schon am nächsten. Die Hintergrundfarbe muss ich noch anpassen. Es ist die LT Univers, welche in den 50-er Jahren von Adrian Frutiger entworfen wurde. Man findet sie aktuell in diversen Font-Bibliotheken im Internet zum kostenlosen Download.

Sollte das Einfügen von Google Maps Street View Bildern den Boardregeln widersprechen, dann bitte ich um eine Nachricht oder ein Moderator entfernt das Bild.

Mathias
 
Die Schriftart passt, aber die Schrift braucht noch etwas Höhe. Dann werden auch die blauen Ränder oben und unten schmaler und der optische Eindruck passt.
Ansonsten- Feliz Navidad!
 
Etwas näher am Vorbild sollte die Schriftart Police d'écriture SNCF, kurz Police SNCF, sein. Diese gibt es hier: Polices d'écritures (die 3. von oben)
 
In einer anderen Spurweite wäre alles so einfach. Ich benötige für mein Projekt mehrere französische Prellböcke.
Einfach bei einem Anbieter wie hier: Heurtoir en rails assemblés [HO] - Decapod einen passenden Prellbock bestellen und fertig.

Da wir ja nicht am Ende eines durchgehenden Hauptgleises sind, brauchte es ja keine massive Betonkonstruktion. Ich wollte eher so was wie in Orleans gesehen:

Vorbild 1.jpg

Oder so was wie in Granville gesehen. Hier auch aus Doppel-T-Trägern gebaut.

Vorbild.jpg

In TT gibt es natürlich nichts Passendes. Also ist Eigenbau offenbar die einzige Alternative. Für Saint-Désert benötige ich mehrere Prellböcke. Was hab ich denn so in der Bastelkiste? Diverse Evergreen-Profile in verschiedenen Größen.

Prellbock 1.jpg

Also ein erster Versuch. Auf ein Tillig-Gleisstück wurden außen zwei Gleisstücke auf die Schwellen aufgeklebt. Die (fehlende) Schienenbefestigung der außen liegenden Schienen verschwindet später unter der Landschaftsgestaltung.

Prellbock 2.jpg

Die erste Stellprobe mit einem Güterwagen zeigt die richtige Höhe der Pufferbohle.

Prellbock 3.jpg

Für den ersten Versuch finde ich das ganz gelungen. Die Pufferbohle entstand aus einer zurecht gesägten 2 mm dicken Forexplatte im Format 2 x 3 x 25 mm. Noch fehlt die farbliche Behandlung.

Mathias
 
Heute habe ich die Kleinteile für die anderen 2 Prellböcke aus dem Doppel-T-Profil von Evergreen zurechtgesägt /geschnitten.

Prellbock 4.jpg

Die Proxxon Kreissäge hat mit einem feinen Sägeblatt und der Gradgenauen Führung (30, 60, und 45 Grad) der Sägeschnitte gut geholfen.

Zu meiner großen Enttäuschung sind die bisher von mir an allen Modulen verwendeten Blue-Point Schalter aus den USA für die mechanischen Weichenantriebe durch den Hersteller wegen eines Eigentümerwechsels in Deutschland nicht mehr lieferbar. Das ist doof.

Eine Alternative dazu sind die mechanischen Antriebe von H0-fine, die sind jedoch in der Montage und der Justierung ziemlich problematisch.
Doch die Modulisten wissen sich zu helfen.

Dank moderner Technologien im 3-D-Druck gibt es Alternativen. Adrian hat da einen neuen mechanischen Weichenantrieb entwickelt und ich habe mich als Tester der Prototypen der neuen Weichenantriebe bereit erklärt. Es bleibt also spannend.

Mathias
 
Ich habe seit über 10 Jahren eine Proxxon KS 230 Kreissäge für den Modellbau im Einsatz. Mit den diversen wechselbaren Sägeblättern säge ich dort Holz, Messing, Alu und Kunststoff sehr präzise und für mich völlig ausreichend.

Säge.jpg

Den heutigen Tag habe ich genutzt, um typisches Modulzubehör anzufertigen.

Kasten 1.jpg

Die Versteifungselemente in der Mitte der Modulkästen wurden mit je drei Bohrungen mit einem Forstnerbohrer zu je 35 mm versehen. Hier können bei Bedarf LocoNet-Kabel durchgeführt werden.

Hülsen.jpg

Hier wurden aus einem 5 mm Messingrohr 4 mm lange Hülsen für die Durchführung der M-3 Gewindestangen für die Weichenantriebe gesägt.
Sie sorgen dafür, dass sich die M-3 Gewindestangen sich nicht durch die Stellbewegungen in das Führungs-Holz einfräsen.

Kabel.jpg

Außerdem wurden heute alle benötigten Anschlusskabel der Module mit Stecker / Buchse für die 3 Segmente des Bahnhofs Saint-Désert verlötet.
Ich mag den Geruch von heißem Lötzinn. Eigentlich achte ich ja beim Modulbau auf eine strikte Trennung von rot und blau bei Kabeln und Steckern. Hier jedoch sind ausnahmsweise schwarze Kabel an blauen Steckern / Buchsen montiert. Ich verbrauche beim Bau einfach die noch vorhandenen Materialien um einen Neukauf zu vermeiden. Die Anschlüsse untereinander und an die Gleise erfolgen wie bei meinen anderen Modulen mit WAGO-Klemmen.

Mathias
 
Moin,
Die großen Durchbrüche möchte man heute nicht mehr zur Durchführung der temporären Installation haben. Das ist zu fummelig und es reisst beim Abbau gern ein Stecker an, wenn man am Kabel zieht.
Empfohlen werden solche Haken, wie im Bild.
Da kann man die Kabel blind einhängen.
Bei meinen Kisten sind die immer recht genau in der Mitte angebracht.
Ging mir mit den Kabeln auch so: es gibt aktuell kein blaues Kabel. Ich hatte noch einen Restbestand.
Grüße Ralf
 

Anhänge

  • IMG_2332.jpeg
    IMG_2332.jpeg
    113 KB · Aufrufe: 324
@WolfgangTT

Litze mit den jeweiligen Steckern / Buchsen habe ich selbst verlötet. Wer es mag, es gibt die Stecker / Buchsen von Hirschmann auch in einer Schraubversion.

Mathias
 
Ich hab noch mal über Ralfs Vorschlag nachgedacht, aber die Methode Haken + Holzklotz hat mir nicht so gefallen.
Noch sind die Teile nicht eingebaut also hab ich mal was probiert. Mit der guten alten Laubsäge. Sägezeit 2 Minuten, alles schön abgeschliffen und fertig. Der Schlitz ist 15 mm breit, da passen auch RUT-Kabel locker rein.

Kasten 2.jpg

Mathias
 
wie wäre es mit Kabelklammern (Bei Hornbach). Diese von unten an die Querversteifung geschraubt. Die sind 20 mm breit. Ggf. Muss da etwas aufgedoppelt werden.
 

Anhänge

  • IMG_0314.png
    IMG_0314.png
    178,1 KB · Aufrufe: 145
Oder diese:


In Kombi mit:

 
Moin,
Es geht ja um die temporär während des Treffens installierte Leitungen für DCC, Uhr/Telefon und diverse Steuerleitungen für Weichen und Signale.
Da ist so ein offener Haken oder der Ausschnitt, wie er jetzt gezeigt wurde für die Leute, die das auf- und abbauen bequemer, als eine geschlossene Öse oder Kabelhalter.
Kann ja nächstes Mal ein Bild machen. Dauert etwas - Roky beginnt am 04.02. …
Aber eigentlich ist das ja nur ein Randproblem.
Grüße Ralf.
 
Ralf hat es korrekt beschrieben, die von mir eingesägten Halterungen sind nur für die temporär während eines Modultreffens verlegten Leitungen gedacht. Die "interne" Verdrahtung der einzelnen Modulkästen erfolgt separat und endgültig.

Heute entstand der erste Modulkasten im Eigenbau. Man kann sich natürlich einen Modulkasten bei diversen Anbietern komplett anfertigen lassen. Alles nur eine Preisfrage.
Meine 3 Kästen im Maß von 90 x 50 cm für Saint-Désert entstehen aus 9 mm Multiplex Birke. Im Toom-Baumarkt in Bernau habe ich mit dem Azubi einen Meister an der Säge gefunden. Ich habe für die Seitenteile der Modulkästen eine ganze preiswerte Platte von 125 cm x 83 cm gekauft und der Azubi hat mir daraus nach gemeinsamer Absprache und Planung alle benötigten Teile sehr präzise und auf den Millimeter genau gesägt. Danke dafür.

Kasten 6.jpg

Alle Schraubverbindungen wurden angesenkt damit sie an der Außenseite nicht hervorstehen können.

Kasten 3.jpg

Der erste Kasten ist fertig. Sauber verschraubt.

Kasten 5.jpg

Hier die Verdrahtung des Modulkastens mittels WAGO-Klemmen, die Klemmen werden mit einem Klecks Heißkleber an der Modulkante fixiert. Die Hirschmann Stecker / Buchsen für die Verbindung zum nächsten Modul sind mit einem im 3-D Verfahren gedruckten Halter (in Orange) von Emanuel an der Unterseite vom Modul für den Transport fixiert. Die durchgehende Verbindung zur anderen Modulkante erfolgt über 1,5 mm² Draht/Litze innerhalb des Moduls. Das ist erforderlich, damit im Kurzschlussfall der Booster des Versorgungsbereiches schnell und sauber abschaltet.

Mathias
 
Nunja, eine geschlossene Öse aus Spritzguss lässt sich mit 2 Sägeschnitten leicht zu einem Haken umfunktionieren. 😉
Aber Deine Variante ist auch nicht schlecht. 👍🏻
 
Zuletzt bearbeitet:
Bei meinen gelieferten Bausätzen von Architecture & Passion war ja auch ein Beipackzettel dabei. Dort entdeckte ich unter der Artikel-Nr. 120ACC92 die für die PLM so typischen standardisierten Betonzäune (Barrières béton)auch in TT. Auf der Website von A&P waren sie nicht jedoch nicht aufgeführt.
Also hab mir ein Herz gefasst und mithilfe eines Übersetzungsprogramms eine Mail mit der Frage nach Lieferbarkeit dieser Teile nach Frankreich geschickt.
Christophe von Architecture & Passion hat mir geantwortet und siehe da ... diverse neue Artikel im Maßstab 1:120 sind auf der Website verfügbar.

Da sind neue Kanten für die Güterrampe in 2 Versionen Klick mich und die Betonzäune in 3 Versionen Klick mich neu im Programm. Vielleicht motiviert das ja noch jemand zum Bau von einer Modellbahn nach französischem Vorbild? Ich bin doch nicht der einzige, oder?

Typ 90.jpg

Mathias
 
Zurück
Oben